袋式过滤器厂家:上海伟秀过滤设备有限公司 021-50117775
电话:021-50117775
张先生:13918928900
邮箱:weixiu@weixiu-filter.com
首 页 公司简介 产品展示 技术指导 生产车间 联系我们 中文版 English

侧入袋式过滤器
顶入袋式过滤机
多袋式过滤器
快开式袋式过滤器
保温夹层不锈钢过滤器
大流量滤芯
塑料过滤器
旋流除沙器
卧式大流量滤芯过滤器
滤芯
过滤袋
热熔过滤袋
PPS除尘滤袋
不锈钢过滤袋
尼龙过滤袋
聚醚砜折叠滤芯
大流量滤芯过滤器
不锈钢保安过滤器
滤芯过滤器
不锈钢滤芯过滤器
M2-500袋式塑胶过滤器
M4-630多袋式塑料过滤器
精密过滤器
精密保安滤芯过滤器
超滤过滤机
全自动过滤器
自清洗过滤器
自动过滤器
反冲洗过滤器
手动型袋式过滤器
手摇刷式过滤器
袋式过滤器
滤袋过滤器
布袋过滤器
碟片过滤器
筒式过滤器
不锈钢过滤器
过滤器配件
蓝式管道过滤器
电镀液过滤机
卧式滤芯过滤器
快开式过滤器
碳钢过滤器
固液分离器
管道除铁器
小型滤芯塑料过滤器
膜壳
折叠滤芯
布袋
线绕滤芯
车缝过滤袋
熔喷滤芯
中温除尘滤袋
亚克力除尘滤袋
美塔斯除尘滤袋
氟美斯除尘滤袋
除尘滤袋
涤纶针刺滤袋
斜管
钛棒滤芯

产品展示
自清洗过滤器
发布时间:2013-10-29   被点击16083次


自清洗过滤器,上海伟秀过滤设备有限公司电话:021-50117775  手机13918928900

 


全自动自清洗过滤器原理
当水从进水口进入过滤器滤筒内部,杂质被拦截在过滤筒内壁,过滤后的干净水从出水口流出,当滤筒内壁的杂质越积越多时,自清洗过滤器进出口的压差达到预设值、达到清洗时间或手动预制时,过滤器将开始自清洗过程,整个自清洗过程包含两个步骤:打开位于自清洗过滤器上的自动排污阀;电机带动自清洗过滤器滤网内的清洗刷,被滤网所拦截下来的杂质从排污阀排出,清洗时系统不断流,自清洗过滤器的整个运行过程由随机配备的一个智能控制箱来控制。控制方式可选压差、时间、手动及 PLC 控制。
自清洗过滤器可在线实现自动清洗、自动排污等功能,操作配备差压/时间/手动三种功能,具有过滤精度高、反清时间短、清洗水量少、压力损失小等优点,为您的水系统提供稳定的水质保证。


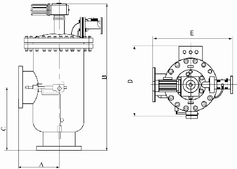
产品结构图

 


应用范围
工业过滤应用:冷却水过滤;保护喷头;污水三级处理;市政水回用;车间用水;R.O.系统前过滤;酸洗;造纸白水过滤;注塑成型机;巴氏消毒系统;真空泵系统;空压机系统;连铸系统;水处理应用;制冷采暖水系统。
灌溉过滤应用:地下水;市政水;江河、湖、海水;果园;苗圃;温室;高尔夫球场;公园。


产品特点
■单台最大过滤流量可达 4000m3/h
■过滤精度从 4000 微米-25微米
■滤网可选钻孔(4000-800μm),楔形(1000-50μm)编织复合(800—25μm)
■最小工作压力≥0.1MPa
■最高工作压力≤1.6MPa(特殊可定制)
■工作温度≤95℃
■电源:380V/50Hz
■控制电压:AC24V
■清洗方式:刷式
■控制方式:压差、时间、手动及 PLC
■清洗时间:10-200 秒可调
■控制方式:压差、时间、手动及 PLC


全自动过滤器产品选型
为了能更适用客户的水系统的技术要求,过滤效果,达到为客户节能、省电、省水、环保的要求。


您在选择自清洗过滤器的时候,请考虑以下几个参数


1、处理流量
2、过滤介质的化学性质
3、过滤介质的悬浮物浓度
4、要求的过滤精度
5、管道的压力

 


过滤精度对照表

微米(μm)

10

25

30

40

50

80

100

120

150

200

400

800

1500

3000

目数

1500

650

550

400

300

200

150

120

100

80

40

20

10

5


 


自清洗过滤器产品规格表

型号

A(mm)

B(mm)

C(mm)

D(mm)

E(mm)

排污口(mm)

电机功率(KW)

流量(m3/h)

重量(Kg)

WX-80-304

250

1000

420

550

550

40

0.09

50

80

WX-100-304

255

1010

425

550

565

40

0.09

80

105

WX-125-304

255

1060

425

550

565

40

0.18

125

130

WX-150-304

279

1200

550

598

620

40

0.18

150

180

WX-200-304

306

1400

718

660

680

40

0.18

320

235

WX-250-304

325

1680

848

708

725

40

0.18

490

280

WX-300-304

380

1720

930

813

830

50

0.25

710

420

WX-350-304

478

2050

1080

940

956

50

0.25

970

537

WX-400-304

550

2280

1228

1000

1020

50

0.25

1260

620

WX-450-304

654

2450

1372

1180

1190

50

0.25

1600

685

WX-500-304

706

2900

1508

1255

1285

65

0.55

1970

738

WX-600-304

840

3450

1828

1298

1320

65

0.55

2500

860

WX-700-304

1008

3960

2160

1460

1680

65

0.75

3500

1400

 


过滤器材质
■壳体:碳钢、304 不锈钢、316L 不锈钢
■滤网:304 不锈钢、316L 不锈钢
■刷架:304 不锈钢、316L 不锈钢
■排污阀:铸铁、铜、不锈钢
■控制器:PVC、铝
■密封圈:EPDM 橡胶
■清洗刷:不锈钢、尼龙

 


全自动过滤器安装与连接


1、设备本体安装

(1)安装使用时,应注意对控制箱、传感器及传动部分的保护,防止损坏。
(2)按照自清洗过滤器本体上的箭头提示方向连接管道,使水流方向与本体上的箭头方身一致。自清洗过滤器有两种安装形式(见下图),采取任何一种安装形式时,应注意使自动排污阀的出口方向为水平或向下,以保证排污更彻底。

 


安装形式一

(3)自清洗过滤器应安装在需要保护的用水设备之前,并尽量靠近用水设备。
(4)在动力系统中,自清洗过滤器应安装在水泵与用水设备之间,越靠近用水设备越好。
(5)自动排污阀连接方式分为法兰和丝扣,排污管不宜过长,最好不要超过 10 米。
(6)安装时应考虑便于检修,自清洗过滤器前后应安装关断阀门,且应安装旁通管道。
(7)自清洗过滤器的规格应与管道或流量相匹配,当一台单台过滤器不能满足系统流量要求时可并联两台或更多,以达到系统过滤要求。(见下图)

安装形式二

 


两台过滤器并联安装图


2、电源连接
(1)本设备在出厂时,控制系统与清洗电机、电动排污阀以及差压控制器之前的电缆已经连接好,在安装时只需要将控制箱留出的电源线连接好即可。
(2)在连接电源时,请根据功率选择合适的电源线连接,按以下图示所标颜色正确接线。
(3)如果设备本体上有电机转向标识时,请按照电机的转动方向标识调整电源线的连接顺序。


电源线连接示意图


3、设备调式
(1)打开电源开关时,电源指示灯应该点亮。
(2)在调式电动部分时,请注意电机的转动方向要与标识方向一致
(3)使用中要根据现场系统的实际要求设定差压,以便能及时清洗排污。
(4)当需要人工强制清洗排污时,可以将控制系统转到手动控制(具体操作见下面操作说明)。
(5)若清洗系统反复清洗,压差仍不能降低至设定值,应停机检修。


4、操作说明
箱操作界面如下图,系统启动时默认处于自动控制状态,自动状态指示灯亮。如需手动即时工作时,请按一下状态选择键,当自动状态指示灯暗、手动状态指示灯亮时,系统处于手动工作状态,此时, 按启动键可启动系统清洗和排污,如需停止,则按停止键,若需回到自动控制状态,则按一下状态选择键,当自动状态指示灯亮、手动状态指示灯暗时,系统处于自动工作状态。


时间控制模式:由于系统的需要,有的客户需要定时和差压同时运行,即在达不到清洗差压时, 如果清洗时间到了,过滤器仍然会自动启动。在开启电源前按住“启动”键,开启电源,电源指示灯闪烁,时间控制模式启动。若要取消,则在开启电源前按住“停止”键,开启电源,电源指示灯长亮,时间控制模式启取消。


注:标准型控制箱的清洗设定时间请在订货前注明。


标准型控制面板示意图

 


控制器在出厂前的默认差压是 100Kpa(即 1 公斤),用户可根据系统实际需要调整合适的差压范 围,设定方法见下图,当调整螺钉顺时针方向旋转一圈为差压值增大 10Kpa(即 0.1 公斤),当调整螺钉逆时针方向旋转一圈为差压值减小 10Kpa(即 0.1 公斤)。如果想校正差压控制器时,请参照过滤器设备上的进出口压力表的数值进行校正。

差压控制器示意图


  上海伟秀过滤设备有限公司 
电话:021-50117775 张先生:13918928900 邮箱:weixiu@weixiu-filter.com 网址:www.weixiu-filter.com
地址:上海市奉贤区浦兰路91弄23号202 工厂:江苏省靖江市城北工业园区北二环路 沪ICP备09027902号-1
上海膜结构 上海室内设计 膜结构公司 上海模型 立式多级离心泵 上海膜结构公司 上海装修设计